
Sydney, Australia
Geotechnical
Done Properly.
Solid Foundation Geotechnical is a locally-owned, independent Sydney consultancy. Built on local expertise, we are your trusted consulting engineers. There from discussing ideas with your architect to the day your slab is poured, making sure it's built right. NATA lab-backed. Fixed-fee quotes. No corporate overhead.
Geotechnical Services | Drilling Services
Expert engineering guidance for Sydney’s residential and commercial projects, from initial soil testing to final construction sign-offs.

Preliminary Site Works
Essential soil testing for residential projects—from new homes and extensions to granny flats and in-ground pools. We deliver fast, accurate Site Classifications (AS2870) and Geotechnical Investigations (AS1726). We provide clear foundation advice and the geotechnical reporting necessary to support DA and CDC pathways, partnering directly with homeowners, architects, and builders to get projects out of the ground.
Explore Preliminary Works →
Construction Phase Support
Keep your site moving safely. We provide rapid, on-site geotechnical inspections for footings, piers, retaining walls, and engineered fill (AS3798). Whether you are a local builder needing a quick proof roll or a structural engineer requiring verified bearing capacity data, we deliver practical, plain-English advice when it matters most to avoid heavy downtime.
Explore Construction Support →
Geotechnical Design
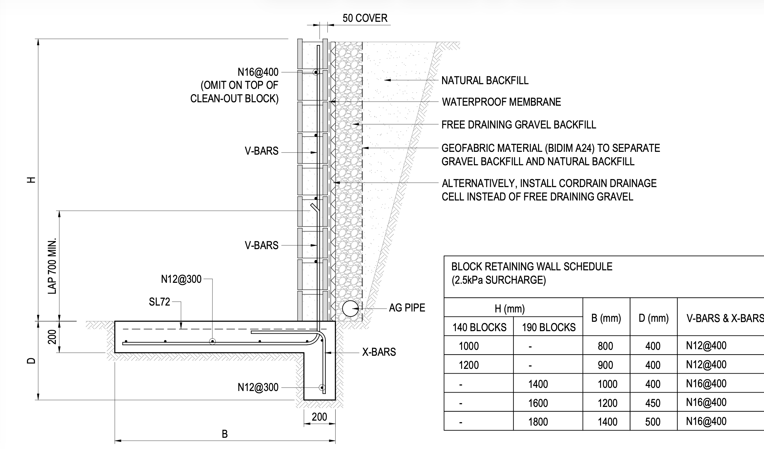
Providing the critical foundational data that structural and civil engineers rely on. From precise soil parameters to pile design inputs and retaining wall design parameters, we equip your team with the reliable geotechnical metrics required for technically demanding structures. We also provide working platform assessments to support safe temporary works planning.
Explore Geotechnical Design →
Drilling Services
Our 4WD Mounted Drill Rig mobilises rapidly across the Sydney Metro. From prestige North Shore sites to tight Inner West terraces. For zero-clearance locations, internal courtyards, and rear-yard investigations, we deploy motorised hand augers and in-situ testing that extract the same quality data without machinery access.
Explore Drilling Services →
Common Questions about Geotechnical Services in Sydney
How much does a geotechnical report or soil test cost in Sydney?
All laboratory testing is conducted through a Third Party NATA-accredited facility, so your report carries the same evidentiary standard as the major firms, delivered with the personal attention of an independent practice.
We review your site address and proposed works before quoting so you receive a fixed-fee scope with no hidden drilling extras. A precise scope upfront is also the best protection against over-engineered foundations downstream.
Ready to get started? Request a fixed-fee site assessment.
Do I need a soil test for a house extension, pool, granny flat, or knockdown rebuild?
What makes SFGEO different from other geotechnical firms in Sydney?
The engineer drills your site. Our Engineers, — not drilling subcontractors — are on the ground for every investigation. The person who signs your report is the same person who extracted the samples.
NATA-accredited lab data. All testing goes through third party NATA-accredited facility, to ensure no conflict of interest. Your report carries the evidentiary standard councils and structural engineers trust.
Local knowledge that takes years to build. We know Ashfield Shale, Hawkesbury Sandstone, and Bringelly Shale the way only a Sydney-based practice can. That local depth is in every report we write.
See our full range of services or speak to our team directly.
What is the difference between a site classification and a full geotechnical report?
What does a 'Class P' site classification mean?
Geotechnical & Drilling Services Across Greater Sydney
Headquartered in Marrickville and regularly servicing the Parramatta corridor, our family-owned team provides expert geotechnical and drilling support across the wider Sydney metropolitan region, including:
Inner West & City
Marrickville, Newtown, Surry Hills, Petersham, Leichhardt, and surrounds.
Parramatta & Western Sydney
Parramatta, Merrylands, Auburn, Homebush, Blacktown, and surrounds.
North Shore, Ryde & Hills
Chatswood, St Leonards, Mosman, Ryde, Kellyville, Rouse Hill, and surrounds.
Eastern Suburbs & Southern Sydney
Randwick, Bondi, Vaucluse, Hurstville, Cronulla, and the Sutherland Shire.